Macungie, Pennsylvania
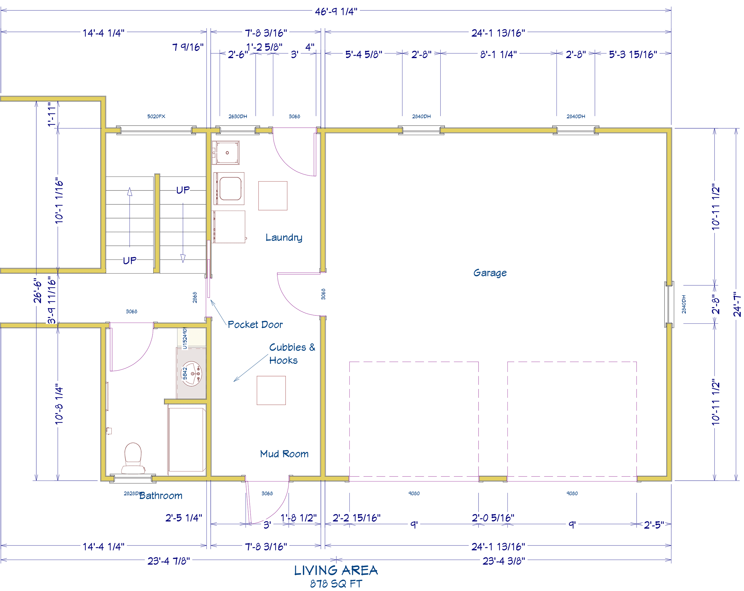
This garage addition in Macungie, PA expanded a ranch-style home to include a two-car garage, full bathroom, and a combined mudroom and laundry area. To start, we built the new garage to seamlessly blend with the existing home’s style. As a result, the homeowners now have additional functional space for vehicles and daily activities.
Next, vinyl strip planking was installed in the mudroom for durability and easy maintenance. Additionally, a utility sink and custom cabinetry were added to the laundry area for organization and convenience. Meanwhile, a small front porch was constructed to match the existing entry, creating a welcoming entrance from the driveway.
Furthermore, the new bathroom provides added comfort and practicality for the family. In addition, all design elements were carefully chosen to ensure the addition complements the home’s overall aesthetic.
Overall, this Macungie garage addition combines style, functionality, and convenience. Moreover, it provides the family with extra space while maintaining the charm and character of the original ranch home.
Project Details
DATE
March, 2018
PROJECT TYPE
SUBCONTRACTORS
Jesiolowski Drywall
Jiminez Roofing
Pizzuto Plumbing
Scott Brick Company
Project Plans
Client Testimonial
“Budd Kahler is an excellent carpenter/builder that strives to meet the expectations of his customers. Our new addition blends in with the rest of the house as if it was built when the house was. Kahler Construction has a trustworthy, courteous, and hardworking group of craftsman they work with. The finished product turned out just as planned. Budd was not the cheapest price, but let’s face it; you get what you pay for. When it’s time for the next major project Budd will be our first call.”











