Macungie, Pennsylvania
This beautiful whole house renovation in Macungie, PA demonstrates how careful planning and expert craftsmanship can completely redefine a home. As a result, the project transformed both the layout and style. The renovation lasted three months and finished before the homeowners moved in. Consequently, the process was seamless and stress-free.
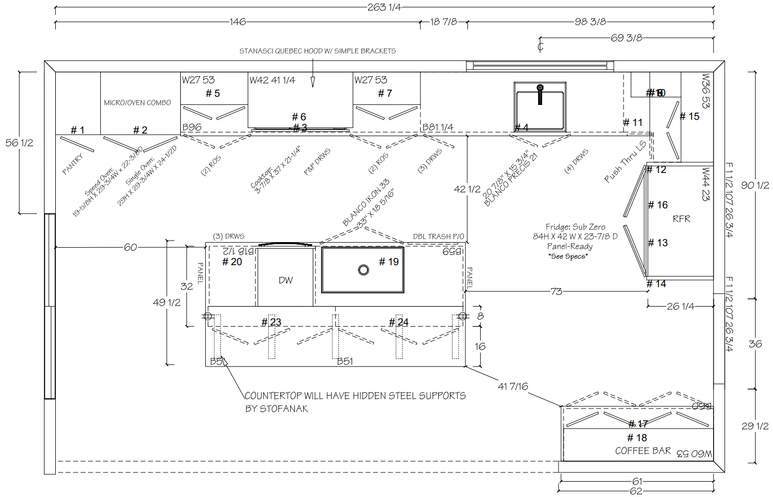
After a month of detailed planning and design, the goal was to create a more open and connected main living area. To achieve this, we removed interior walls and installed structural beams. Additionally, the kitchen and Great Room were joined, improving flow and functionality throughout the first floor.
New hickory hardwood flooring was installed across the home, excluding bathrooms and laundry areas. Meanwhile, the custom kitchen became the centerpiece of the renovation. It features a spacious island with beadboard detailing, glass doors, floating shelves, and a farmhouse sink. Together, these elements provide both charm and practicality.
The laundry room was reimagined and expanded into the garage. As a result, the homeowners gained additional workspace and storage. Furthermore, all baseboards, door casings, and interior doors were replaced with modern solid-wood finishes. Elegant crown molding and a full interior repaint brought a refined, finished look to the entire home.
Overall, this Macungie whole house renovation balances modern design with timeless craftsmanship. Moreover, it delivers an open, inviting home tailored to the owners’ lifestyle. In addition, thoughtful updates in every room enhance both beauty and functionality.
Project Details
DATE
January, 2025
PROJECT TYPE
SUBCONTRACTORS
East Penn Hardwood
Jesiolowski Drywall
JP Works
Malozzi Tile & Marble
Overbeck Electric
Stofanak Custom Cabinetry
Pizzuto Plumbing
Hoxie’s Painting
Project Plans
Client Testimonial
“Budd, Dylon, and the Kahler Construction subcontractors did a whole home renovation and small addition for a house we bought in the Lehigh Valley. This was an extensive project that involved about three months of planning and four months of active work to complete, including structural engineering involvement.
From the initial consultation to project wrap, Budd was always available for us over phone or email as we sorted through the many decisions we had to make. There were a number of change orders throughout the renovation, but Budd never flinched when we asked to do just a bit more. We were impressed by how clean the crew kept our home even though we were not living there during the renovation, and our neighbors frequently commented on the crew’s respectfulness and efficiency.
We could not be more pleased with the finished product, and we now consider the Kahlers and subs friends. We are quick to recommend Kahler Construction to friends and family in the Lehigh Valley, and we will only use them for any future home project!”





















