Zionsville, Pennsylvania
This elegant kitchen renovation in Zionsville, PA was designed to create a bright, open-concept layout. As a result, the kitchen connects seamlessly with the family room. The homeowners wanted a modern, functional space that feels both spacious and inviting. Consequently, it is perfect for everyday living and entertaining.
To achieve this vision, we removed all soffits and non-structural columns. Additionally, we opened up the floor plan to take full advantage of the home’s 10-foot ceilings. A partition between the mudroom and garage entry was also removed. As a result, the kitchen footprint expanded and the flow improved throughout the first floor.
The opening to the dining room was widened to let in abundant natural light from the southern exposure. Meanwhile, the hardwood floors were sanded and stained in a rich, warm tone. Together, they harmonize beautifully with the linen-colored cabinetry and enhance the airy, open feel.
Finishing touches include custom cabinetry extending to the ceiling, glass doors, a wood hood, and quartz countertops. Furthermore, these elements combine to deliver a timeless and sophisticated design.
Overall, this Zionsville kitchen renovation perfectly blends modern openness with classic details. Moreover, it transforms the heart of the home into a refined, welcoming space. In addition, every detail was selected to enhance both style and functionality.
Project Details
DATE
April, 2025
PROJECT TYPE
SUBCONTRACTORS
East Penn Hardwood
Hoxie Painting
Jesiolowski Drywall
JP Works
Malozzi Tile & Marble
Overbeck Electric
Pizzuto Plumbing
Stofanak Custom Cabinetry
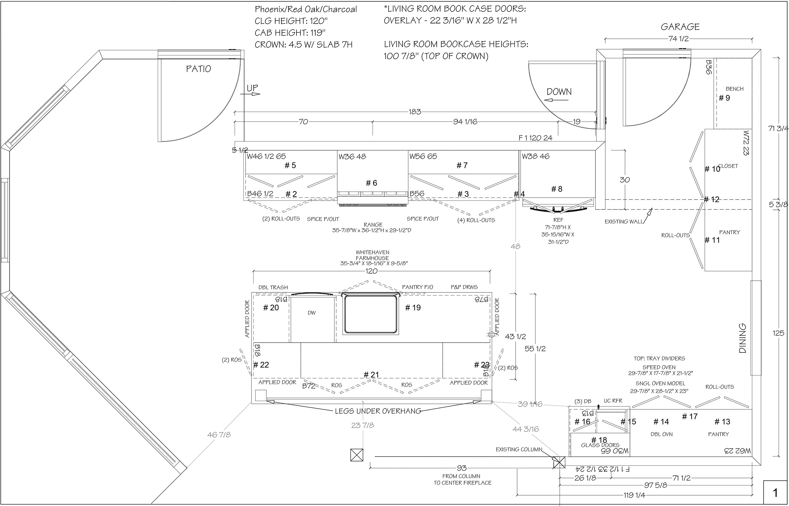
Project Plans
Client Testimonial
“We had an excellent experience working with Kahler Construction on a comprehensive remodel of our kitchen, mudroom, and powder room, which also included refinishing the hardwood floors and staircases on our main floor. Budd and his team did a terrific job—high-quality craftsmanship, clear communication, and attention to detail throughout the entire process. The project was completed within the expected time frame, which we greatly appreciated. We wouldn’t hesitate to work with Kahler Construction again for any future remodeling or home construction needs and highly recommend them.”





















