Macungie, Pennsylvania
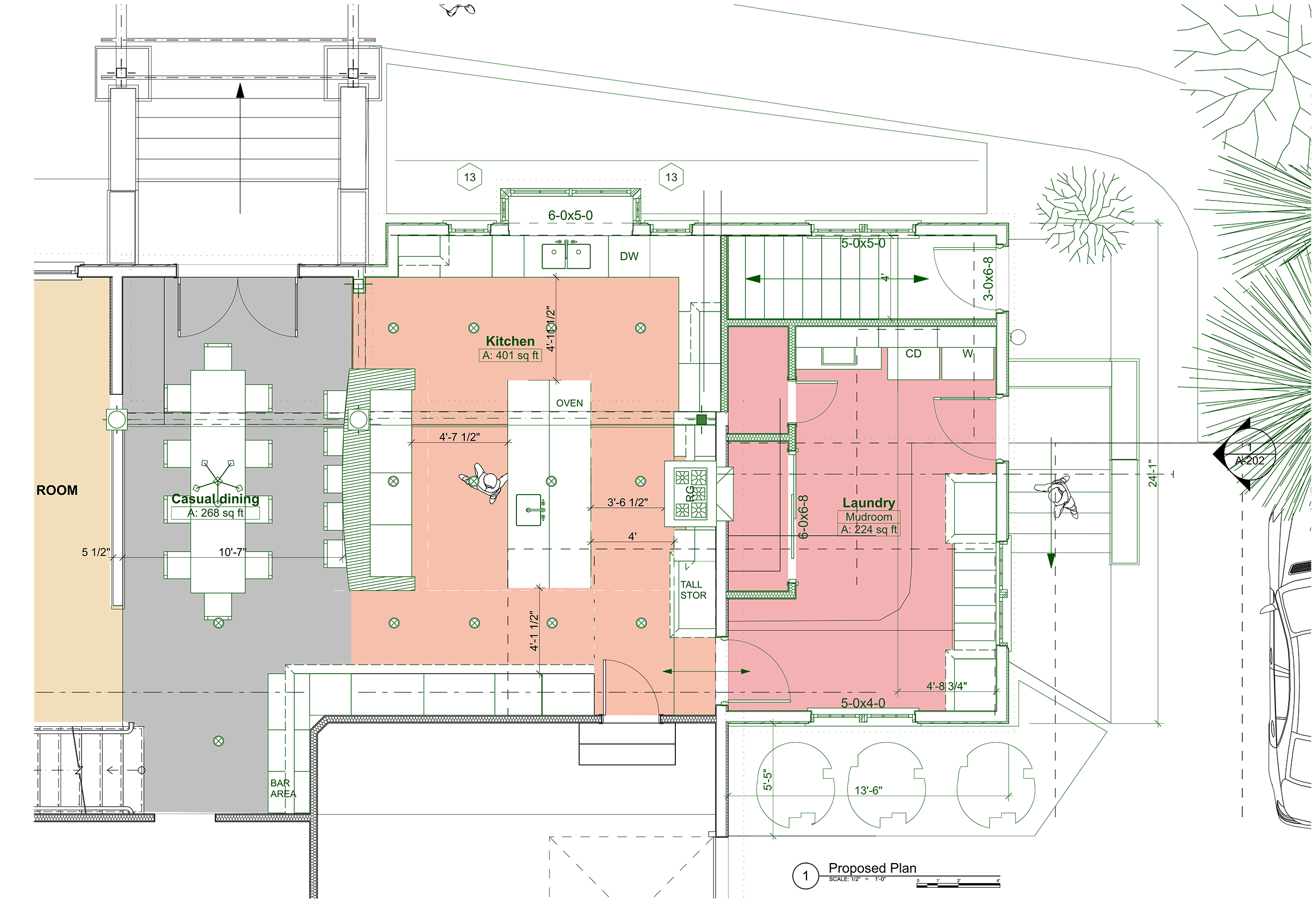
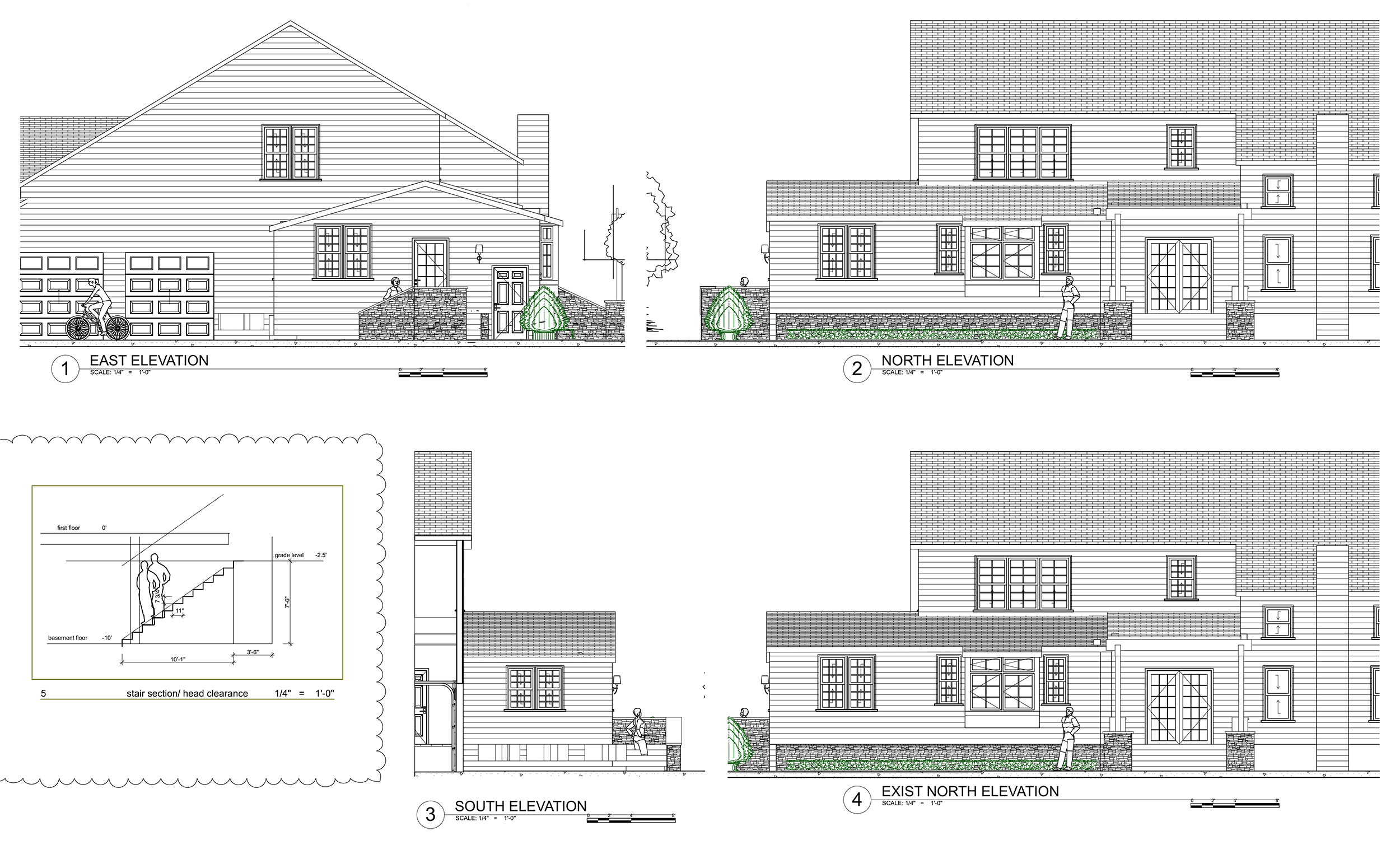
This kitchen remodel in Macungie, PA fully reimagined the heart of the home. To begin, we expanded the kitchen and added a generous laundry room. Additionally, we excavated the basement and built egress stairs to boost storage and safety.
We installed a 36-foot structural beam to support the second floor and to open the kitchen footprint. As a result, the room now flows freely for cooking and entertaining. Meanwhile, the kitchen features two nine-foot islands plus a ten-person live-edge dining area for large gatherings.
Furthermore, we laid ceramic tile in the main kitchen and installed custom maple cabinetry. Also, a ten-foot triple awning window provides a full view of the backyard. In addition, the appliance suite includes eight feet of refrigeration, a six-burner gas stove, a pot filler, and an undercounter beverage center.
We continued upgrades across the first floor by installing hickory hardwood and new baseboard moldings. Moreover, we added a manufactured stone staircase to enhance the entry’s character. Finally, we matched the roofing and siding to the existing home so the addition looks original and cohesive.
Overall, this Macungie kitchen remodel blends durability, style, and function. Moreover, each detail reflects careful planning and skilled craftsmanship to create a warm, highly livable kitchen.
Project Details
DATE
February, 2020
PROJECT TYPE
SUBCONTRACTORS
East Penn Hardwood
Jesiolowski Drywall
JP Works
Mac Kitchens
Malozzi Tile & Marble
Overbeck Electric
Jiminez Roofing
Pizzuto Plumbing
Schreffler Painting
Project Plans
Client Testimonial
“We ventured into a very big project for our dream kitchen. We knew we wanted to expand the size of our kitchen and completely gut it and start from scratch, as well as expand our laundry room. We interviewed several contractors before we met Budd Kahler. Budd followed up with us in a very timely fashion, and had a very well laid out plan, with every detail listed as well as cost. It was more comprehensive than anyone else could provide, and we instantly liked his style.
We started our project in late 2019, and everything was on target, and flowing very nicely. All of Budd’s sub contractors were nice, trustworthy, clean and most importantly reliable. Budd was always on top of the project and communicated with us regularly. If we needed him for anything, he was always available to help us.
A lot of the job was completed with Budd and his son in law Dylan, who was a pleasure to work with! Unfortunately Covid hit, and our project got delayed. There were many reasons for the delay; none of them were Budd’s fault, just bad luck on our part.
When we were finally able to move forward with our project, Budd and his team did an amazing job! We expanded our kitchen, created a new laundry room and mudroom, and really have our dream space. Budd was meticulous and paid attention to detail. He and most of his team were kind and caring and really took pride in our job!
We would highly recommend Kahler Construction, and Budd and his team for any job big or small. Ours was a huge project and we are so pleased that we went with Budd and his team!”



















