Macungie, Pennsylvania
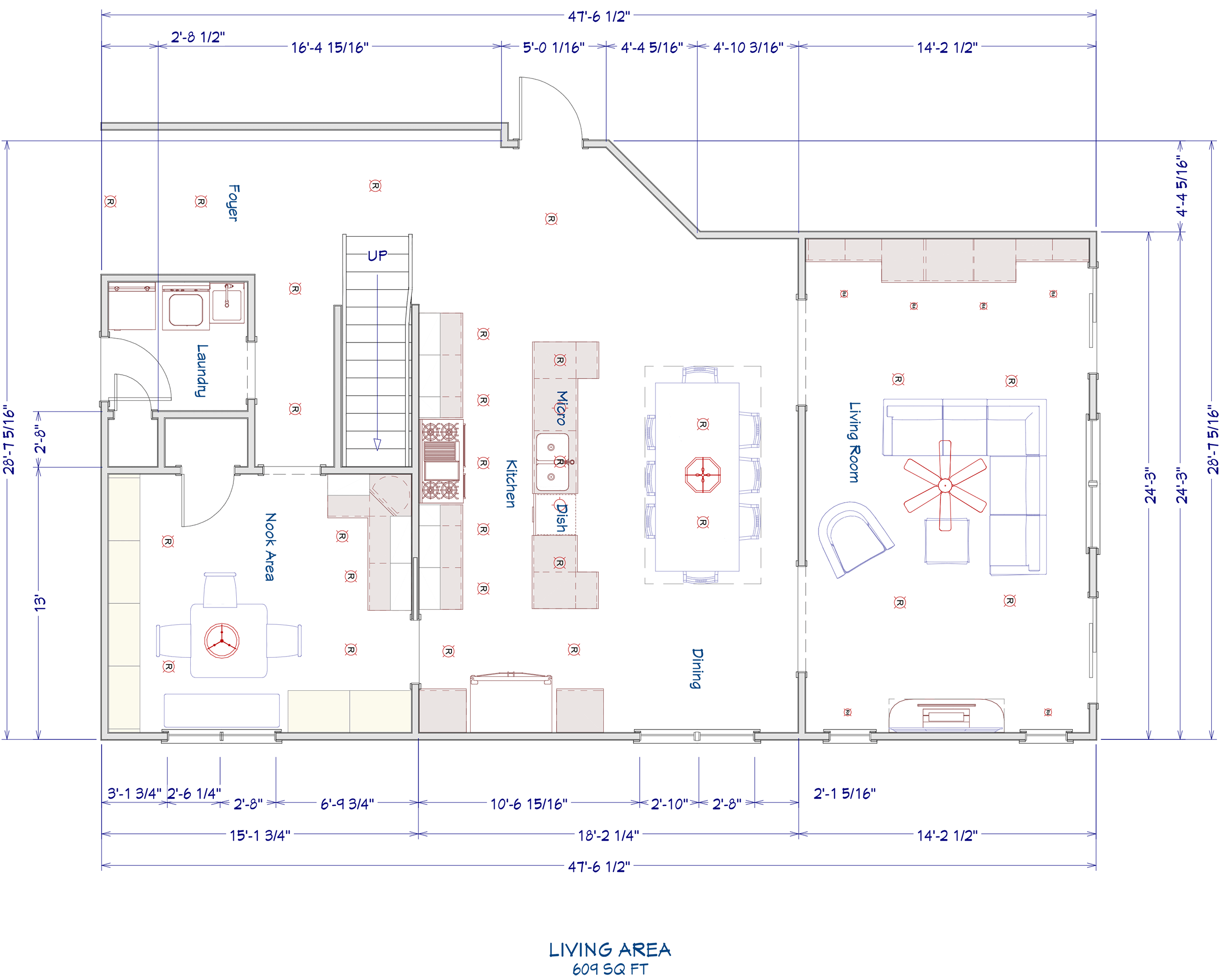
This stunning house renovation in Macungie, PA completely transformed the home into a bright, open, and functional living space. To start, we removed several interior walls to expand the kitchen into the former dining area. As a result, the homeowners now enjoy a much larger and more comfortable space for gatherings and everyday living.
The original kitchen measured only about 10 by 12 feet. However, with the new design, the layout feels spacious and inviting. Additionally, we added a ten-foot island that serves as the centerpiece of the room. Furthermore, a six-burner gas stove, a dry bar, and floor-to-ceiling cabinetry enhance both the functionality and aesthetic appeal of the space.
Throughout the home, every surface was updated for a fresh, modern look. For example, we removed all existing carpeting and installed prefinished hardwood flooring to add warmth and durability. Meanwhile, all three bathrooms were completely remodeled with new fixtures, finishes, and layouts to improve comfort and flow.
In addition, the entire interior received a full repaint, bringing harmony and brightness to each room. Finally, the completed renovation delivers a seamless blend of comfort, craftsmanship, and design that perfectly reflects the homeowners’ style.
Overall, this Macungie house renovation demonstrates how thoughtful planning and expert construction can transform an older home into a beautiful, cohesive, and highly functional living space.
Project Details
DATE
June, 2021
PROJECT TYPE
SUBCONTRACTORS
East Penn Hardwood
Jesiolowski Drywall
JP Works
Overbeck Electric
Stofanak Custom Cabinetry
Pizzuto Plumbing
Schreffler Painting
Project Plans
Client Testimonial
“We have had the pleasure of using Kahler Construction for numerous projects. Budd Kahler is a hands on owner who is involved from the initial design to project turnover. The attention to detail runs through the project and is carried through with the sub-contractors who are the very best in the area. Our last project with Kahler Construction involved a total renovation of 2,900 square feet, which included the kitchen and 3 full baths. The project exceeded our expectations and came in on time and on budget.
Simply put, they are the best!”


















