Emmaus, Pennsylvania
This home addition in Emmaus, PA expanded an existing galley-style kitchen and dining area with a 160-square-foot addition. To start, we installed extensive structural wood framing, including posts and beams, to support the new space. As a result, the addition seamlessly integrates with the existing home while providing extra room for daily use.
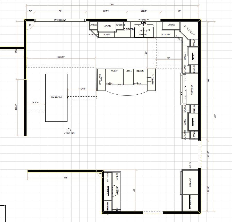
Next, the eleven-week renovation included a full kitchen redesign with a large island and Lutron lighting to enhance both functionality and ambiance. Additionally, multiple openings were relocated to improve flow between the kitchen and dining area. Meanwhile, every detail was carefully planned to create a bright, open, and highly functional space for the family.
Furthermore, this addition enhances both the style and practicality of the home. In addition, the thoughtful design ensures a cohesive look while maximizing natural light and usability. Overall, this Emmaus home addition combines modern design, expert craftsmanship, and practical solutions. Moreover, it provides the family with a comfortable, inviting space to cook, dine, and gather.
Project Details
DATE
October, 2013
PROJECT TYPE
SUBCONTRACTORS
East Penn Hardwood
Jesiolowski Drywall
Mac Kitchens
Malozzi Tile & Marble
Overbeck Electric
Jiminez Roofing
Scott Brick Company
Project Plans
Client Testimonial
“Budd and his team exceeded our expectations. They were there for every stage of our project, conception, design, construction, and final touches. Budd takes personal pride in the team’s work as well as being a working member of the team. They were able to bring our major kitchen remodel in on time and on budget with the quality and design we were looking for. They are easy to work with, nothing is too much or an inconvenience for Kahler Construction. We highly recommend them.”












