Allentown, Pennsylvania
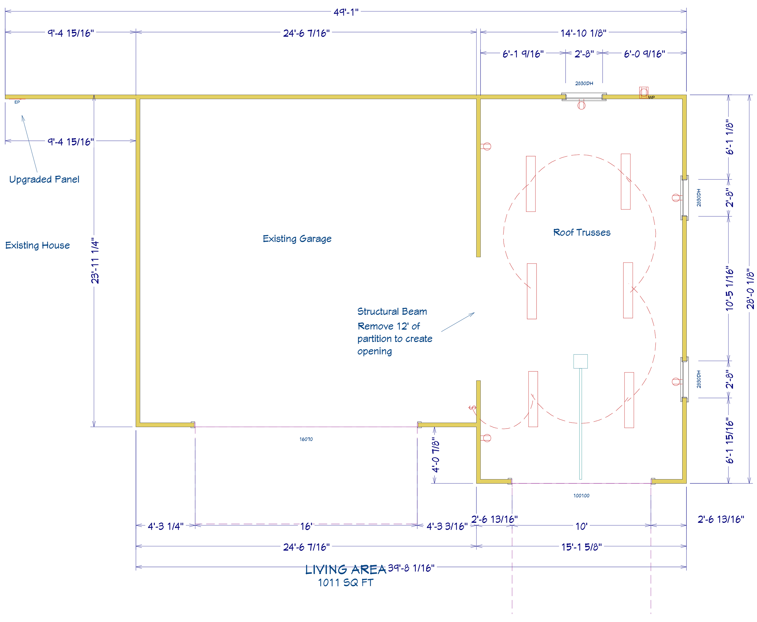
This house renovation in Allentown, PA completely transformed the home into a modern and functional space. To begin, we built a 15-foot by 28-foot garage to expand living space and improve convenience. As a result, the family now has more storage and vehicle space while the home layout flows seamlessly.
Next, we removed all existing flooring and installed new materials throughout the home. Additionally, we tore down some interior walls and built new ones to open up the layout. Meanwhile, we gutted both bathrooms and installed updated fixtures and finishes for a fresh, modern look.
Furthermore, we added a custom kitchen with quartz countertops to serve as the centerpiece of the home. In addition, we replaced the roof, installed vinyl siding, and updated the garage doors to improve both function and style. After that, we built front and rear concrete patios to provide comfortable outdoor living and entertaining spaces.
Overall, this Allentown house renovation combines craftsmanship, style, and practicality. Moreover, we carefully planned every design element to create a cohesive, inviting, and functional home for the family. Finally, the result is a beautiful, modern home ready for years of enjoyment.
Project Details
DATE
October, 2017
PROJECT TYPE
SUBCONTRACTORS
East Penn Hardwood
Jesiolowski Drywall
JP Works
Malozzi Tile & Marble
Overbeck Electric
Jiminez Roofing
Scott Brick Company
Project Plans
Client Testimonial
“We contracted with Kahler Construction to complete a four month total renovation of our house. This included inside, outside and adding a third garage bay. We are very pleased with the end result. I would recommend calling Budd Kahler for your construction projects.”











