Macungie, Pennsylvania
This whole house renovation in Macungie, PA completely transformed the home. First, the project improved comfort, style, and functionality in every room. As a result, the space now feels cohesive and inviting. From the master suite to the basement bar, every room received thoughtful updates.
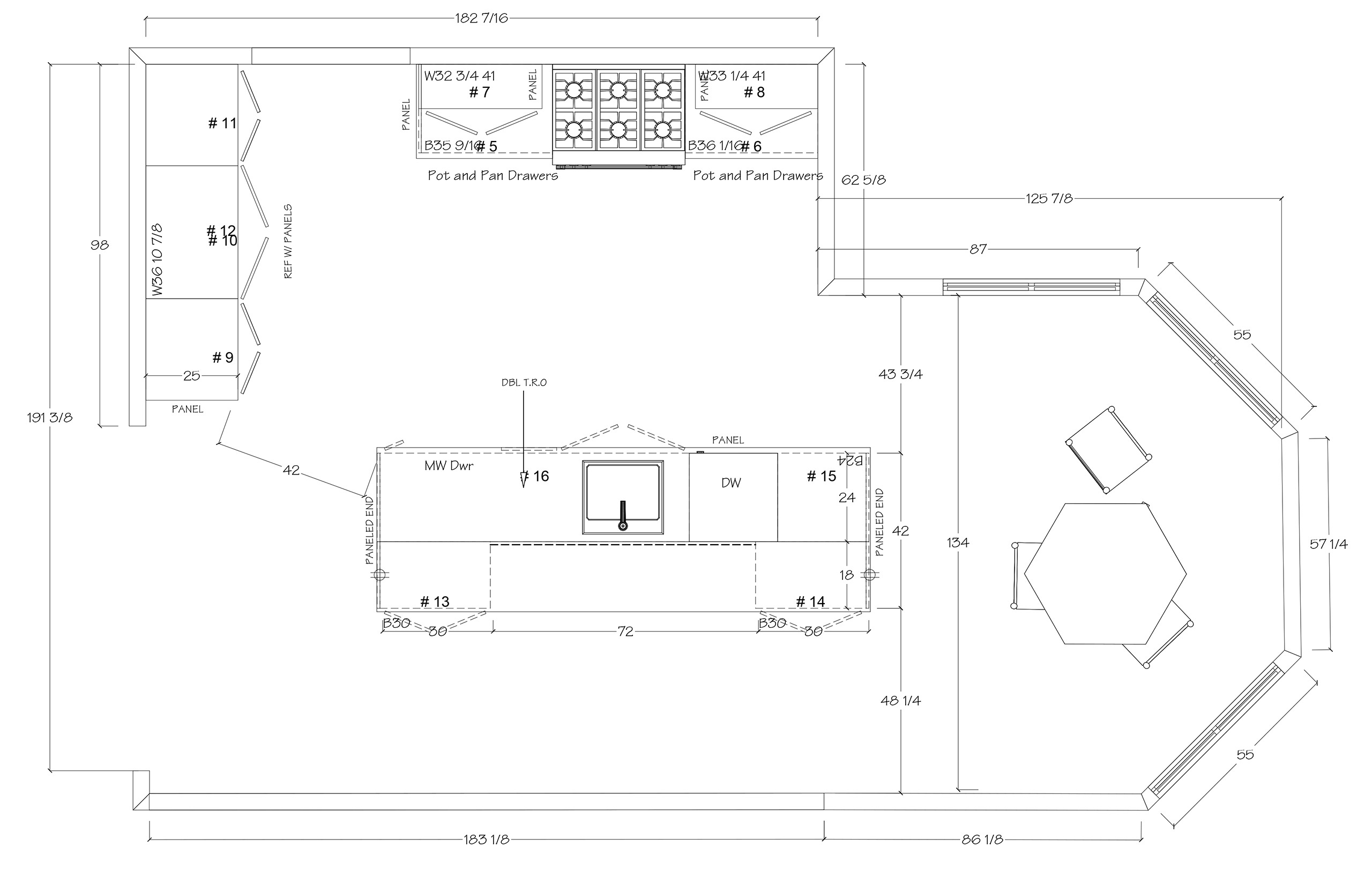
To begin, we updated the kitchen by removing outdated soffits to make room for custom cabinetry and Titanium Antique Quartz countertops. Consequently, the kitchen became bright, open, and highly functional. Meanwhile, we installed new hardwood flooring in the Great Room. Then, we removed bulky soffits to open up the space further. In addition, a large built-in television provides everyday comfort and entertainment.
Next, the Master Suite received elegant hardwood flooring, replacing the old carpet. Similarly, the Master Bathroom was fully redesigned. Now, it features a spacious ceramic walk-in shower with a glass enclosure, a relaxing soaking tub, custom stained cabinetry, and quartz countertops. Throughout the home, soft pastel paint colors create a light, airy atmosphere while enhancing the perception of space.
Afterward, the basement was updated with new carpeting and upgrades to the grand bar area. As a result, this space blends comfort with sophistication, making it perfect for entertaining. Moreover, careful planning ensured each room flows naturally into the next.
Finally, this Macungie whole house renovation demonstrates how thoughtful design, expert craftsmanship, and attention to detail can completely reimagine a home. In addition to that, every element was selected to enhance both beauty and functionality. Altogether, the combination of modern finishes and classic touches creates a warm, welcoming atmosphere throughout the home.
Project Details
DATE
July, 2024
PROJECT TYPE
SUBCONTRACTORS
East Penn Hardwood
Jesiolowski Drywall
JP Works
Malozzi Tile & Marble
Overbeck Electric
Pizzuto Plumbing
Hoxie’s Painting
Project Plans
Client Testimonial
“Kahler Construction has done 3 major renovations for us. Their team consists of family members and their subs contractors are the best in the Valley. They take your vision from design stage, to construction all while meeting your budget and timeline. Budd Kahler is honest, dependable and experienced. I would never do a project without him and his team.”
























